CRAFTSMAN ADDITION
LAMMERT DESIGN STUDIO
CRAFTSMAN ADDITION
LAMMERT DESIGN STUDIO
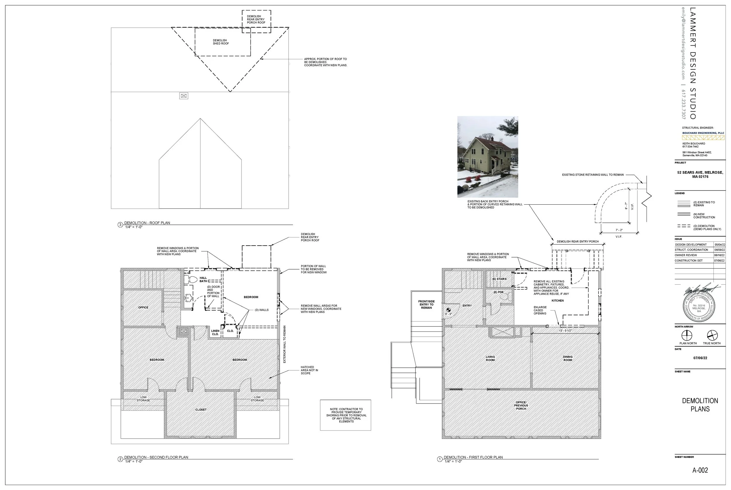
Created documentation for Existing Conditions, Schematic Design, Design Development, and Construction Documents in Revit. Designed bathroom layouts and created RCPs.
LAMMERT DESIGN STUDIO
LAMMERT DESIGN STUDIO
Created documentation for Existing Conditions, Schematic Design, Design Development, and Construction Documents in Revit. Designed bathroom layouts and created RCPs.